
PROJECT PRELIMINARY SPECIFICATIONS 2026
Organized by: The Turkish Catastrophe Insurance Pool
Competition Website: https://binatasarimi.dask.gov.tr
TCIP Earthquake-Resistant Building Design Competition in 6 Steps.
- Creαte your team of 5.
- Design multistory buildings: Maximize the floor area αnd minimize the earthquake losses.
- Register for the competition with your project until January 30, 2026.
- If you are one of the teams qualified for the finals, prepare your physical model.
- Send us your model before May 12, 2026.
- Test your building model on the shake table on the competition day, May 14, 2026.
BRIEF DESCRIPTION OF THE TCIP EARTHQUAKE-RESISTANT BUILDING DESIGN COMPETITION
Designing αnd building earthquake resistant structures is one of the most effective methods in fighting massive αnd destructive earthquakes which are causing substantial damages socio-economically in our country αnd are still a considerable element of threat. Every study that aims to make structures safely survive possible massive earthquakes is invaluable. The competition to be organized is important in this respect. In this respect, the TCIP Earthquake-Resistant Building Design Competition aims to contribute to the knowledge αnd practical skills of future civil engineers, to support αnd promote earthquake engineering discipline αnd to increαse public awareness about earthquakes.
1. INTRODUCTION
The TCIP Earthquake-Resistant Building Design Competition is organized among teams of civil engineering students of universities. The competition has three stages. In the first stage, teams apply to the competition in accordance with the project preliminary specification. In the second stage, the teams who are up for the final stage design their building models in accordance with the technical specifications to be announced αnd prepare their building models. In the third stage of the competition, the multistory building models constructed by the teams are tested on the "shake table" during the competition under three different earthquake scenarios. The winning team is determined considering the earthquake performance of the models dictated by the rules of the competition.
Teams consisting of a minimum of four and a maximum of five undergraduate university students are eligible to register for the TCIP Earthquake-Resistant Building Design Competition. The majority of the students in a team (at least three of them) should be civil engineering students. Maximum two architecture students from the same university can be in the team. If the university does not have an architecture department, the team affiliated to that university may optionally have architecture students from other universities.
Teams will be represented by the name of the university. If the team members' university does not have an architecture department and architecture students from other universities are included in the team, the name of the civil engineering students' university will be listed in the competition application.
Each university may have more than one team apply for the competition. However, only one team from each university can qualify for the final stage of the competition. In the selection process among universities with the same score based on evaluations in line with the application requirements, geographical distribution will also be considered as a criterion. All applications will be evaluated by the Head of the Competition and the Technical Advisory Committee, and the teams selected to participate in the competition will be determined.
Teams can work with at least one faculty advisor from the Department of Civil Engineering; however, in the event that a team advances to the final, only one advisor's travel and accommodation expenses will be covered. Applications from teams without an advisor will be considered invalid.
The earthquake performance of the scaled building models, which will be designed according to the established rules and made from balsa wood sticks and sheets, will be experimentally determined by subjecting them to a series of tests on the shake table.
The most important factor for the success of the model building is that it does not collapse during an earthquake. Nevertheless, technical, economic, and aesthetic factors will also affect the teams' performance as individual criteria. The technical scoring is based on the earthquake performance of the structure (measured acceleration and minimal structural damage); the economic scoring considers the model's weight (material quantity) and total floor area; and the aesthetic scoring evaluates the building’s architecture and the project presentation (poster design and its presentation).
The winning team will be the one that achieves the highest total annual income, determined by a cost-benefit analysis that takes into account the factors outlined above, weighted accordingly.
The TCIP Earthquake-Resistant Building Design Competition, which comprises calculation, design, planning, construction, presentation techniques, and physical testing, is a competition for young civil engineering candidates who, as part of a team, collaborate with different disciplines to improve their project presentation skills.
In this context, the scores for calculations, design, structural model construction, physical testing, and presentation skills and techniques are important factors. The competition, which emphasizes that the design and construction of a multistory building should be evaluated not only in terms of earthquake resistance but also in terms of its functionality and financial profitability, is an extremely educational and instructive event.
1.1. Objectives of the TCIP Earthquake-Resistant Building Design Competition
- To provide civil engineering and architecture students with the opportunity to work on earthquake-resistant multistory building design and structural model construction.
- To promote the profession of earthquake engineering and encourage students to specialize in this field.
- To raise awareness about earthquakes and earthquake-resistant buildings.
- To equip civil engineering students with the skill to perform earthquake analysis on a structure.
- To provide civil engineering students with the opportunity to collaborate with other disciplines.
1.2. Definition of the Problem
The competition involves the design and structural model construction of an office building proposed to be located in the İstanbul Financial Center (IFC). In the twin-tower project, which is designed on a shared footprint and connected to each other by bridges at different storey levels, the owner expects a high level of structural performance under seismic loads as well as a high benefit-to-cost ratio. The twin towers will consist of a minimum of 20 and a maximum of 30 storeys, with the ground floor height being 50% greater than the typical storey height.
The model building, made of balsa wood, will have its seismic performance determined through shake table tests. In this context, the shake table tests will be conducted at three different levels of ground motion. The main objective here is for the structure to be designed in such a way that it ensures life safety performance in the event of an earthquake, and it should not sustain damage to the extent of collapse under the maximum seismic impact.
The teams advancing to the final will receive a new seismic motion during the competition, in addition to the ones provided earlier, and this new motion will be used in one of the shake table tests. Teams will conduct their analyses based on the new seismic motion given on finals day, before the jury evaluation, and will present the results they have gathered during the jury presentation. An appropriate space and time will be provided and allocated for this αnalysis. Teams will bring their own laptops, with the software they will use and the building analysis model installed and fully operational.
Displacement and acceleration at the roof level of the structure will be determined during the tests. These values will be used to calculate the monetary losses resulting from damage to structural and non-structural elements and equipment.
The economic losses resulting from the collapse of the model towers or the bridges connecting them will be calculated by considering demolition and debris removal costs, reconstruction costs, and the duration of service interruption. As a final step, the annual earthquake cost for each of the three earthquake levels will be calculated by dividing the total economic loss by the recurrence period of the earthquake.
A cost-benefit analysis will be conducted to determine the most economically efficient building among all those qualified for the finals. Within this scope, building income will be compared to the total of construction and earthquake costs.
- Building Income: It will be calculated with regard to the floor areas to be leased. Higher revenue per square centimetre will be generated by the floor areas of the first two storeys (the ground floor and the first typical storey), as well as by those of the 25th storey and above.
- Construction Cost: It will be calculated based on the weight of the structure. A penalty for cost increase will be applied to structural models that exceed the weight or size limits. If the net weight of the model (excluding the wood base and roof plates) exceeds 1.0 kg but does not exceed 1.3 kg, a cost increase penalty will be applied. Structural models with net weights exceeding 1.3 kg will not be eligible to compete.
- Earthquake Cost: It will be calculated based on the performance of the structure under seismic loads. The maximum roof acceleration and relative roof displacement of the model will also be determined through structural analyses for each earthquake The calculated maximum roof acceleration and relative roof displacement will be presented as each team’s structural performance prediction values. To the extent that the predictions corresponding to the first strong ground motion are close to the test results obtained during the competition, the teams’ building earthquake costs will be reduced accordingly.
- Winning Criteria: The competition ranking will be determined based on the benefit/cost ratio of each model. Additionally, prize points will be awarded to the teams with the best architecture, presentation, and poster.
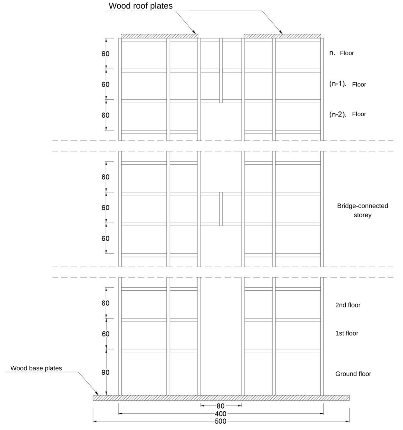
The model towers are required to be interconnected by three bridges. In cases where the towers comprise 25 storeys or more, the use of up to four bridges will be permitted. One bridge must mandatorily be configured as a two-storey bridge linking the uppermost two storeys of the towers (see Figure 1). The remaining two (or three) bridges shall be configured as single-storey, self-supporting elements, positioned at selected storey levels other than the ground floor, without receiving structural support from adjacent storeys (see Figure 1).Key considerations to be taken into account by the teams during the preliminary sizing phase are outlined below:
- Maximum floor plan dimensions: 160 mm × 400 mm for each tower (measured from the outer face to the outer face of the elements constituting the perimeter - see Figure 2).
- Tower-to-tower distance in plan: 80 mm.

Figure 1. Schematic cross-section of the building model

Figure 2. Schematic storey plans of the building model
- Minimum floor plan dimensions: 80 mm × 200 mm
- Storey height: 60 mm (measured from one floor plane to the adjacent floor plane. (see Figure 1)
- Ground floor storey height: 90 mm (see Figure 1).
- Maximum number of storeys: 30 (including ground floor)
- Minimum number of storeys: 20 (including ground floor)
1.3. Competition Participation Requirements and Registration
All teams wishing to participate in the competition must register via the competition's website by January 30, 2026.
All teams participating in the competition must pay attention to the following requirements:
- Only undergraduate students enrolled in university programs may participate in the TCIP Earthquake-Resistant Building Design Competition.
- Teams must submit the student certificates and contact details (phone number and email) of all team members during the application.
- Teams must designate a team captain during the application and provide all contact details for the captain.
- The competition application must be prepared according to the project proposal template, provided as an example, and all questions in the template must be answered.
- During the application review process, the Jury and Technical Advisory Committee may contact the team captain by phone (video call if possible) to ask questions regarding the project. Therefore, the team captain should be prepared for a phone call after submitting the application.
- The majority of the students in a team (at least three of them) should be civil engineering students. A maximum of two architecture students from the same university can be part of the team.
- If the university attended by the team members does not have an architecture department, architecture students from other universities may be included in the team.
- Each team must consist of at least four and at most five students.
- Only an academic advisor from the civil engineering department can lead the team. Applications from teams without an academic advisor will be considered invalid.
- Universities may apply to the competition with more than one team.
- Only one team from each university will be selected for the final.
- Questions regarding the registration process should be sent to the following email:
1.4. Important Dates*
|
COMPETITION |
DEADLINE |
|
Announcement of the competition |
December 23, 2025 |
|
Project application |
January 30, 2026 |
|
Announcement of the selected teams and the delivery of materials for the physical models |
February 16, 2026 |
|
Delivery of the building model information file** |
May 4, 2026 |
|
Delivery of the physical models to the competition venue*** |
May 11-12, 2026 |
|
Presentations and Jury Voting |
May 13, 2026 |
|
Shake Test |
May 14, 2026 |
|
Award Ceremony |
May 15, 2026 |
* The right to modify the dates is reserved. Any changes will be communicated to participants via email. Participants are advised to regularly check their inboxes for any updates.
** The file must include the performance estimates and floor areas.
*** The physical models must be delivered to the competition venue, which will be announced. The deadline is 5:00 PM on May 12, 2026.
1.5. Measurement Units
All units in the competition shall be in the SI system (i.e., mm, kg, N).
1.6. Material Supply and Model Construction
Construction materials for the models will be sent by TCIP to the teams that have qualified to participate in the competition. Details regarding the construction materials will be provided in the Technical Specifications. Teams are not allowed to use any materials other than those provided by TCIP. Additionally, they may not cut the materials to reduce their thickness or glue them together to increase their thickness. Therefore, all beams, columns, and diagonal elements must have 6 mm ´ 6 mm square cross-sections, and all wall elements must be 3 mm thick.
- Balsa sticks (250 pieces, 1000 mm length, 6 mm ´ 6 mm square section stick)
- Balsa sheets (35 pieces of sheet, 1000 mm length, 100 mm width, and 3 mm thick)
- Wood roof plate (2 pieces 150 mm ´ 150 mm ´ 8 mm; approximately 600 grams)
- Wood base plate (500 mm ´ 500 mm ´ 12 mm; approximately 2,300 grams)
- Glue
- Green cutting mat
2. PRIZES
2.1. Competition Winner and Ranking
The team whose model does not collapse under any of the three ground motions and achieves the highest Final Annual Income (FAI) will be declared the winner of the competition.
Teams whose models collapse during the shake table tests will be evaluated in a separate category from those whose models do not collapse. In each category, teams will be ranked based on their FAI score.
A monetary prize of TRY 125,000 will be allocated to the civil engineering department of the winning university for the purpose of laboratory equipment procurement. The following prizes will be awarded to the students of the university teams that rank in the top three:
First team: TRY 100,000 and a laptop computer for each team member as the Türk Reasürans Special Prize
Second team: TRY 80,000 and a large tablet for each team member
Third team: TRY 65,000 and a small tablet for each team member
Additionally, the advisors of the top three teams will each be awarded an tablet.
2.2. Certificate of Appreciation
A certificate of appreciation will be awarded to each team member for their participation.
2.3. Special Awards
Five special awards will be given in the competition:
- Best Architecture Special Award
- Best Earthquake Performance Special Award
- Best Communication Skills Special Award
- Best Presentation Special Award
- Best Competition Spirit Special Award
All teams receiving special awards will be given technology gift vouchers.
3. COMPETITION CALENDAR
The following activities will take place during the competition. The activity calendar may be modified. The calendar will be announced via the website.
- Delivery of the physical models to the competition venue on the date specified in the competition calendar
- Allowing time for the repair of physical models damaged during transportation before the oral presentations begin
- Structural analysis of the building based on the ground motion provided during the competition, before jury scoring
- Oral presentations on the first day of the competition
- Inspection of physical models of the technical team to check whether they comply with the Technical Specifications.
- Shake tests: The shake table earthquake test will be conducted after the technical and poster presentations of the physical models. Winning teams will be selected and announced after the shake table tests. Before the first shake starts, shake direction will be determined by a coin toss.
4. PROJECT APPLICATIONS
Teams must present a project proposal for the evaluation of the Technical Advisory Committee of the TCIP Earthquake-Resistant Building Design Competition. The project proposal template has been prepared and provided as an example. Project proposals must be prepared in accordance with the proposal template.
Student certificates of the team members must be included in the project proposals submitted during the application. Student certificates are exempt from the page limit of the project proposal file.
- Student certificates of all team members and the information of the faculty member serving as the team advisor
- Contact details of the team captain and all team members (current email addresses and phone numbers)
Applications that do not include the aforementioned details will not be considered.
The use of any type of base isolators, seismic dampers, or similar mechanisms in project proposals, to be presented in the application and in physical models (if the application is approved), is strictly prohibited. In addition, teams may not use any materials other than those provided by TCIP during the construction of the models.
At this stage of the competition, the structural system and floor plans, initially submitted as a project proposal following the preliminary design/pre-sizing, must be optimized according to engineering, architectural, economic, and other requirements. The final design must then comply with the rules and principles outlined in the Technical Specifications. In this context, changes may be made to the number of floors, structural system, and floor plans accordingly.
5. INQUIRIES ABOUT THE COMPETITION RULES
All inquiries regarding the competition rules and the corresponding responses will be published on the competition's website.
To request information on the rules, the form on the website must be completed. Ensure that you have thoroughly read the competition rules and guidelines before submitting any inquiries.
Team advisors will be notified by email when the information page is updated.
TCIP may amend the rules, deadlines, and specifications of the competition, provided that prior notice is given.
6. THE JURY AND OBJECTIONS
The Technical Advisory Committee is authorized to interpret the rules and manage the technical aspects of the competition. The Jury and Technical Advisory Committee shall be responsible for scoring and decisions. All decisions made by the Jury and Technical Advisory Committee are final.
